Este anteproyecto plantea una vivienda unifamiliar aislada en Abegondo que se adapta con precisión a la topografía del terreno, resolviendo el programa mediante una volumetría clara, horizontal y contemporánea.
La casa se organiza en una pieza longitudinal elevada sobre un basamento de hormigón, lo que permite minimizar el impacto sobre el terreno y, al mismo tiempo, abrir las estancias principales hacia el paisaje. La intervención busca equilibrio entre implantación y ligereza, apoyándose en una estrategia de integración con el entorno natural.
Concepto y organización

El proyecto distingue dos elementos principales:
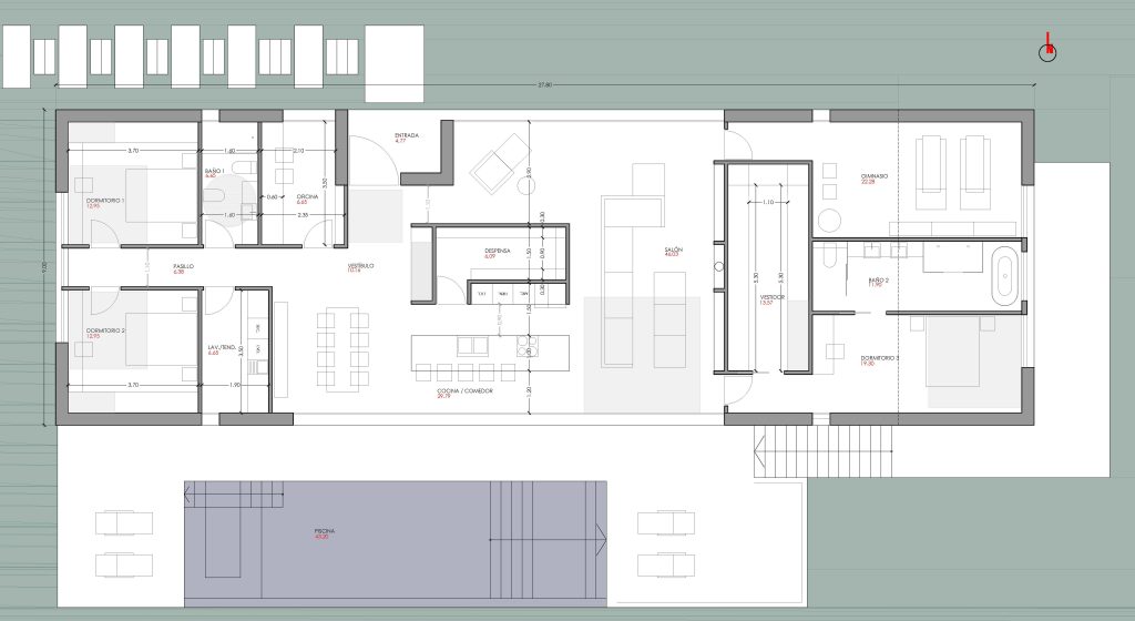
- Volumen principal: alberga la vivienda en una única planta, con un esquema funcional claro y eficiente.
- Cuerpo auxiliar: destinado a acceso y servicios, que articula la llegada desde la parcela.
El programa se desarrolla en torno a un gran espacio de día continuo —salón, cocina y comedor— que se abre completamente hacia el exterior mediante un gran frente acristalado. Esta relación directa con la terraza y la piscina convierte el espacio exterior en una prolongación natural de la vivienda.
La vivienda cuenta con una superficie construida aproximada de 294 m², distribuidos entre planta principal y un nivel inferior con usos complementarios










